リノベリポは、実際にリノベーションを行っているお家をリポートしていきます

どんな流れでリノベーションが進められていくのかをご紹介

 

 

2023.3.27-4.27

現地調査

2023.9.6-9.29

解体作業

2023.10.2-2024.2.5

造作作業

concept

 

 

築145年の古民家を新たに生まれ変わらせるリノベーション

住まう人に合わせた空間とより過ごしやすい導線を組み合わせた住まいづくりを叶える

 

 

【住まい構成】

 

【今回のご要望】

施主さまからのご要望を紹介します。

家族構成から3世代それぞれのご要望をヒアリングしています。

 

1.2階に大容量のウォークインクローゼットが欲しい

2.子ども部屋を2室から3室に増やしたい

3.玄関にシューズクロークがほしい

4.食洗機を使用していたものより大きいサイズへ変更したい

5.パントリーが欲しい

6.ランドリールームが欲しい

7.ウッドデッキが欲しい

8.祖父の部屋をリニューアルしたい

9.広くて明るく過ごしやすいLDにしたい

10.広くて使い勝手が良いキッチンにしたい

11.親戚や友人が過ごせる客間が欲しい

12.外観や玄関ドアをリニューアルしたい

13.帰宅動線や家事動線を考えてほしい

 


room plan

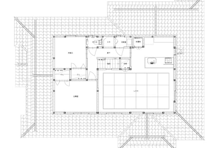
BEFORE

1F

2F

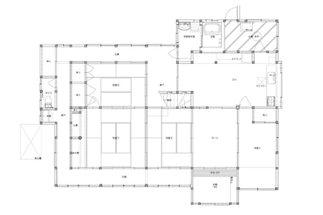
AFTER

1F

2F


 【リノベーション概要】

施工面積:1150.19㎡(45.43坪)2階:39.10㎡(11.83坪)

施工箇所:玄関・ホール・広縁・和室3室・洋室・DK・土間・洗面脱衣室・浴室

     トイレ・2LDK2階廊下・2階主寝室・雨樋・外壁・屋根瓦

工事期間:約7か月

築年数 :145

床仕上げ:オーク無垢フローリングOSMOオイル塗装仕上げ

壁仕上げ:珪藻土塗り

天井仕上:珪藻土塗り

木製建具:オーダーメイド木製建具

設備器具:システムキッチン『タカラスタンダード・レミュー』

     ユニットバス『タカラスタンダード・プレデンシア』

     トイレ『LIXIL・サティスS』

     洗面器『LIXIL・ワイドスクエアボウル』

 

POINT

 

築145年の歴史、住み継いできたこの場所で居心地のいい快適な暮らしになるように古い家の新しい暮らしを実現することを目指した 

 

駐車場から家までの距離が長く奥様の帰宅動線とご主人様とお子様の帰宅動線を分けて考え、奥様の帰宅動線上にパントリーやランドリールーム、WIC、水廻りを設けることで毎日の家事負担を軽減できるような回遊動線と間取りを考えた

 

以前のDKは暗くて寒い北東に配置されていたため、あまり使われていない南に面した和室の続き間へ配置することで明るく広々としたLDKに様変わりしているLDKや祖父の部屋には隠れていた梁を露出して145年の材木が家の歴史を感じさせている

 

リビングから庭へ暮らしが広がるウッドデッキは開放感をもたらし家にいながら外を感じられ憩いの時間が持てる

 

20年にリフォームして設けられていた2階のLDKは子ども部屋と、主寝室、大容量のWICとFCLとして仕切り、子供の成長と共に変化するライフスタイルに合わせた間取りになっている

 

祖父の部屋と客間は来客の際は引き戸を取外しでき続き間として利用できるような可変性を持たせている

 

築145年となると家の損傷が目に見えない部分に至る所にあり補修や補強を施すと共に断熱材がほとんど入ってはいない状態から床下から壁内、天井に隙間なく施し建物の状態に応じてコストも抑えつつ効果的に断熱性を向上させている

 

 

 

完成したリノベーション住宅『神村の家』はこちらをご覧ください

お問い合わせ先

 

有限会社宮原工ム店

084-963-2759

 

〒720-2104 広島県福山市神辺町道上門前1814

 

 

 

↓↓お問い合わせフォームはコチラから↓↓