モデルハウス販売


ちょうどいい暮らしがある家

 

こちらの平屋モデルハウスは販売終了となりました

沢山の方に見学会にお越し頂きありがとうございます

引き続きご愛顧のほど宜しくお願いします

 

 

 

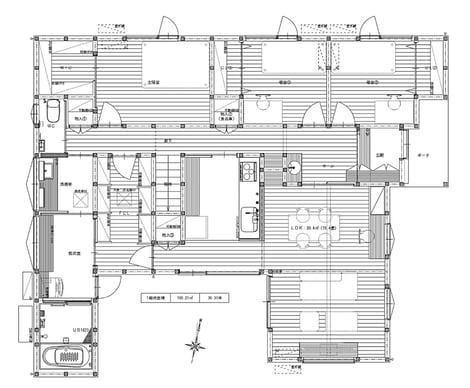
【建物概要】

・敷地面積:225.42 ㎡(68.18 坪)、建築面積:103.52 ㎡(31.31 坪)

・間取り:3LDK、駐車場 3 台

・市街化調整区域、道路幅 6m、接道⻑ 12.45m、平坦、上水道、浄化槽

・学区:神辺⼩学校、神辺⻄中学校

・耐震等級 3(設計性能評価書)

・木造在来工法平屋建て、ロフト付

・断熱性能:HEAT20・G2(0.46)を上回る UA 値 0.35(断熱等級 6)、C 値は 0.3 (隙間の大きさ 5.5 ㎝角程度)

 

【設備】

システムキッチン 255 ㎝・システムバス 1620 サイズ・タンクレストイレ・造作洗面・第 1 種換気システム(熱交換式)・太陽光発電 5.5kw 搭載・エコキュート 460 ㍑・オール電化住宅 照明器具・全室エアコン・カーテン完備・外構済み 

PHOTO

POINT

☑耐震等級3を取得した家づくりで、安心安全な暮らし

 消防や警察など防災の拠点となる建物の耐震性に匹敵! 

 

☑断熱性能はHEAT20・G2以上のUA値0.35の高断熱仕様

 高性能の家づくりで最新の快適性を実感できます

 

☑軒が深く木の質感が美しいシンプルな外観

 どこか懐かしい和モダンの外観は個性的なデザインで必見です 

 

☑吹き抜けのある玄関は明るく開放的

 限られたスペースを有効に活用した空間アイデアをご覧ください 

 

☑リビングにはロフトと勾配天井があり明るいダイナミックな空間

 屋根の傾斜を利用した勾配天井とリビングの吹き抜けが合わさり開放感たっぷりの空間は家族がのびのび過ごせます 

 

☑洗う、干す、たたむ、しまう、一連の家事が集約できる楽々動線

  毎日の家事が楽しく楽になる動線と収納は奥様必見の間取りです 

 

物件概要


【物件概要】

■所在地:広島県福山市神辺町大字川北字南ノ丁1518 -11■交通:JR 福塩線神辺駅より車で6分(2.3km)■坪単価:14 万円■地目:宅地■都市計画:市街化調整区域■用途地域:用途地域の指定していない地域■建ぺい率:60%■容積率:200%■土地権利:所有権■地勢:平坦■特約事項:開発道路(私道)の各敷地接道者の負担割合は1/13 とします■設備:上水道 / 電気 / 浄化槽

MAP


 

フレスポ神辺モール近く

福山市立神辺西中学校の南側にシンシティ川北はあります

 

近隣施設


 

シンシティ川北分譲地のまわりには生活に便利な施設が沢山あります

教育や治安に関連する建物もあるので安心です

住みやすい街、川北

 

お問い合わせ先


 

有限会社宮原工ム店

084-963-2759

 

〒720-2104 広島県福山市神辺町道上門前1814

 

 

 

↓↓お問い合わせフォームはコチラから↓↓